Ufficio in affitto

Travagliato, Via Conciliazione
€ 1.600 / mese
Prezzo aggiornato
1 locale 1 locale
160 Mq 160 Mq
1 bagno 1 bagno

Ufficio in affitto

Travagliato, Via Conciliazione

Descrizione annuncio

COSA SAPERE DELL'IMMOBILE

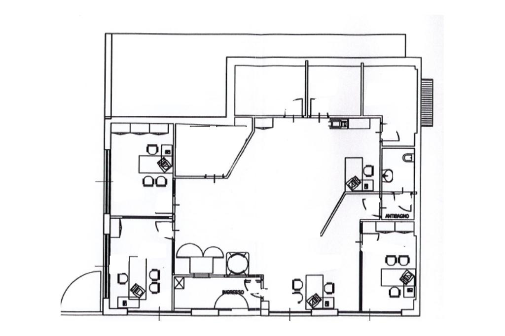
Proponiamo esclusivamente in locazione un ufficio che dispone di una superficie utile di circa 160 metri quadrati, disposti su di un unico livello al piano terra di una struttura che si sviluppa su tre piani fuori terra.

DESCRIZIONE E PARTICOLARITA'

La soluzione ha una superficie che misura, nella sua totalità, circa 160 metri quadrati. L'unità immobiliare internamente è suddivisa in 7 locali ed è dotata di un servizio igienico a con sanitari a norma per disabili. L'ambiente risulta particolarmente luminoso grazie alla presenza di ampie vetrine. L'immobile ha installato gli impianti elettrico e di illuminazione e l'impianto di riscaldamento.

UBICAZIONE E CONTESTO

La costruzione sorge sulla circonvallazione del centro storico cittadino, sulla strada che collega al vicino centro di Torbole Casaglia ed in direzione opposta conduce alla strada provinciale che collega all'accesso della nuova autostrada A35.

Mostra tutto

Nelle vicinanze

Trasporto pubblico Trasporto pubblico
stazione di Ospitaletto-Travagliato
stazione di Ospitaletto-Travagliato
2,9 Km
Trasporto pubblico
90 m
Torbole Casaglia - Centro
Torbole Casaglia - Centro
2,1 Km
Ricariche auto elettriche Ricariche auto elettriche
Via Mulini
1,3 Km
Scuole Scuole
Accademia Musicale Santa Cecilia
800 m
Scuola media statale Leonardo da Vinci
860 m
Scuole Elementari Ingegnere Giovanni Capitanio
940 m
Scuola Secondaria di Primo Grado Leonardo Da Vinci
2,3 Km
Scuola Primaria
2,3 Km
Farmacia Farmacia
Farmacia Comunale Piazza Libertà
690 m
Farmacia Paterlini
770 m
Conad
1,1 Km
Farmacia Comunale La Cupola
1,2 Km
Farmacia Comunale
2,1 Km
Supermercati Supermercati
Eurospar
910 m
Conad
1,1 Km
Family Market
1,2 Km
D+ Discount
2,1 Km
Negozi Negozi
Pellicceria Naoni
80 m
Minimarket
220 m
Valentina
650 m
Vesti Bimbo
690 m
minimarket Festa Luigia
700 m
Bar Bar
bar Centrale
690 m
Bar Roma
810 m
Forty Four
870 m
Route 66
1,0 Km
Erato'
1,1 Km
Ristoranti Ristoranti
Ristoranti
140 m
Ristorante La Torre
290 m
Ristorante pizzeria Il Gabbiano
830 m
Operbacco
890 m
Ristorante Il Calesse
930 m
Mostra tutto

Caratteristiche

Rif.:
61115809
Piano:
Terra di 3
Totale piani:
3
Posti auto:
30
Condizionamento:
Autonomo
Ascensore:
No
Mostra tutto
Prezzo Prezzo
€ 1.600 / mese
Spese annue Spese annue
€ 950

Classe Energetica

Questo immobile è esente da classe energetica
Anno di costruzione:
1990
Riscaldamento:
Autonomo
Tipo impianto:
Ad aria
Tipo alimentazione:
Aria

Prezzo ridotto di €1 (100%%)

Ti interessa visionare l'immobile?

Fissa un appuntamento  Fissa un appuntamento

Richiedi informazioni

* Questi campi sono obbligatori
Affiliato
Industriale Rovato Srl
Via Franciacorta, 74 25038 Rovato (BS)

Il nostro staff


  • Dylan Barzaghi
    Collaboratore

  • Matteo Cottelli
    Collaboratore

  • Sofiamaria Poli
    Coordinatrice

  • Federica Toresini
    Affiliata
Via Franciacorta, 74 25038 Rovato (BS)
Zona: Provincia di Brescia-Hinterland Sud-Ovest
Mostra su mappa
Orari: Lunedì-Venerdì dalle 08.30-12.30 14.30-19.30 Sabato dalle 08.30-12.00
Affiliato
Industriale Rovato Srl
Via Franciacorta, 74 25038 Rovato (BS)

2025 Tecnocasa Franchising S.p.A. - P. IVA 08365160152 - Via Monte Bianco 60/A 20089 Rozzano (MI). Ogni agenzia ha un proprio titolare ed è autonoma. Privacy policy | Policy utilizzo | Cookie policy