Ufficio in affitto

Rovato, Corso silvio bonomelli
€ 3.150 / mese
Prezzo aggiornato
4 locali 4 locali
280 Mq 280 Mq
2 bagni 2 bagni

Ufficio in affitto

Rovato, Corso silvio bonomelli

Descrizione annuncio

COSA SAPERE DELL'IMMOBILE

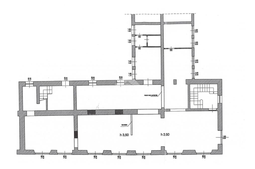
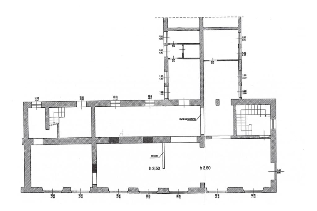
Proponiamo in locazione un ufficio che dispone di una superficie utile di circa 280 metri quadrati, posto al piano terra di un edificio strutturato su quattro livelli.

DESCRIZIONE E PARTICOLARITA'

La soluzione proposta in locazione ha una superficie che misura nella sua totalità 280 metri quadrati, di cui 50 metri quadrati destinati a deposito e situati al piano interrato. Internamente l'immobile si presenta suddiviso in quattro locali, resi particolarmente luminosi grazie alla presenza di numerose vetrine con affaccio diretto sulla strada. L’ufficio è dotato degli impianti elettrico e di illuminazione, mentre c’è la predisposizione per gli impianti di raffreddamento e di riscaldamento. A completare la soluzione è la presenza di due servizi igienici a norma per i disabili.

UBICAZIONE E CONTESTO

L’immobile è situato nella zona commerciale del comune di Rovato e dispone di due posti auto privati. La posizione risulta particolarmente strategica, in quanto l’ufficio si trova lungo una delle vie principali del paese e beneficia di un elevato passaggio automobilistico.

Mostra tutto

Nelle vicinanze

Trasporto pubblico Trasporto pubblico
stazione di Rovato Città
stazione di Rovato Città
520 m
stazione di Rovato Borgo
stazione di Rovato Borgo
1,3 Km
linea ambiente coccaglio
linea ambiente coccaglio
2,1 Km
Trasporto pubblico
2,3 Km
Ricariche auto elettriche Ricariche auto elettriche
A2A Municipio di Rovato
480 m
Lidl Rovato | EnelX
510 m
A2A Rovato Garibaldi
530 m
A2A Casello di Rovato A4
1,7 Km
Scuole Scuole
Scuole
200 m
Scuola primaria
480 m
Farmacia Farmacia
Farmacia
270 m
Farmacia Comunale
400 m
Supermercati Supermercati
Eurospin
1,3 Km
Negozi Negozi
Piazza Italia
1,7 Km
Bar Bar
Antinoo bar gelateria
1,2 Km
Bar Sport
2,3 Km
Rock Out
2,9 Km
Bar
2,9 Km
Ristoranti Ristoranti
Pizzeria Ristorante Il Veliero
310 m
Ristorante Pizzeria Corona
350 m
Ristoranti
440 m
Officina del gusto
1,0 Km
osteria degli undici
1,4 Km
Mostra tutto

Caratteristiche

Rif.:
61198046
Piano:
Terra di 4
Totale piani:
4
Box:
2
Posti auto:
10
Condizionamento:
Predisposizione impianto
Mostra tutto
Prezzo Prezzo
€ 3.150 / mese
Spese annue Spese annue
€ 0

Altre caratteristiche

Descrizione dei locali
Bagno Con Finestra

Classe Energetica

Questo immobile è esente da classe energetica
Anno di costruzione:
1970
Riscaldamento:
Assente

Prezzo ridotto di €1 (18%%)

Ti interessa visionare l'immobile?

Fissa un appuntamento  Fissa un appuntamento

Richiedi informazioni

Clicca su Leggi per aprire l'informativa
* Questi campi sono obbligatori
Affiliato
Industriale Rovato Srl
Via Franciacorta, 74 25038 Rovato (BS)

Il nostro staff


  • Matteo Cottelli
    Collaboratore

  • Michelle Gallo
    Coordinatrice

  • Sofiamaria Poli
    Coordinatrice

  • Federica Toresini
    Affiliata

  • Alessandro Zini
    Collaboratore
Via Franciacorta, 74 25038 Rovato (BS)
Zona: Provincia di Brescia-Hinterland Sud-Ovest
Mostra su mappa
Orari: Lunedì-Venerdì dalle 08.30-12.30 14.30-19.30 Sabato dalle 08.30-12.00
Affiliato
Industriale Rovato Srl
Via Franciacorta, 74 25038 Rovato (BS)

2026 Tecnocasa Franchising S.p.A. - P. IVA 08365160152 - Via Monte Bianco 60/A 20089 Rozzano (MI). Ogni agenzia ha un proprio titolare ed è autonoma. Privacy policy | Policy utilizzo | Cookie policy