Ufficio in affitto

Gussago, Via Enrico Fermi - Mandolossa
€ 1.400 / mese
8 locali 8 locali
200 Mq 200 Mq
2 bagni 2 bagni

Ufficio in affitto

Gussago, Via Enrico Fermi - Mandolossa

Descrizione annuncio

COSA SAPERE DELL'IMMOBILE

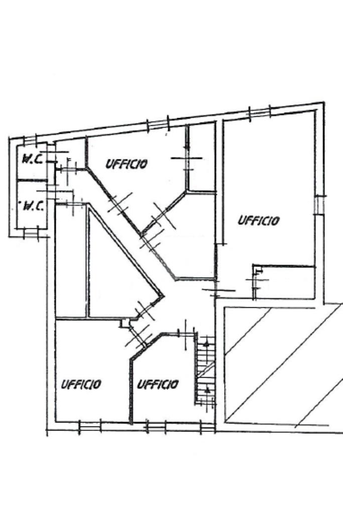
Proponiamo in locazione un ufficio che dispone di una superficie calpestabile di circa 200 metri quadrati, posizionato al primo piano di un edificio che si sviluppa su due livelli.

DESCRIZIONE E PARTICOLARITA'

L’ufficio che proponiamo in locazione dispone di una superficie utile di circa 200 metri quadrati posizionati al piano primo. Internamente, l’ambiente si presenta con ampi locali divisi da pareti, i quali risultano particolarmente luminosi grazie alla presenza di numerose vetrine. L'immobile è dotato di due servizi igienici a norma disabili. La soluzione è completa degli impianti elettrico, di riscaldamento, di condizionamento e di illuminazione.

UBICAZIONE E CONTESTO

L’immobile sorge nella zona commerciale del Comune di Gussago e dispone di alcuni posti auto messi a disposizione della clientela.

Mostra tutto

Nelle vicinanze

Trasporto pubblico Trasporto pubblico
stazione di Castegnato
stazione di Castegnato
3,0 Km
Trasporto pubblico
490 m
Mandolossa trav.Decima(capolinea)
Mandolossa trav.Decima(capolinea)
500 m
Mandolossa
Mandolossa
480 m
Ricariche auto elettriche Ricariche auto elettriche
A2A Villaggio Badia
970 m
Centro Commerciale Rondinelle Ingresso Ovest
1,6 Km
Centro Commerciale Rondinelle Ingresso Est
1,8 Km
A2A Villaggio La Famiglia
1,9 Km
IKEA Brescia
2,2 Km
Scuole Scuole
Scuola Primaria Don Milani
950 m
Scuola Secondaria di Primo Grado Kennedy
1,4 Km
Scuola elementare Eugenio Montale
1,9 Km
Scuola Primaria Gianni Rodari
2,3 Km
Scuola Secondaria di Primo Grado Statale Antonio Gramsci
2,6 Km
Farmacia Farmacia
Farmacia Comunale 06 Badia
900 m
Farmacia Comunale 05 Violino
1,6 Km
Parafarmacia Conad
1,8 Km
Farmacia comunale
2,7 Km
Farmacia Carpi
2,8 Km
Ospedali Ospedali
Istituto Clinico Sant'Anna
2,4 Km
Supermercati Supermercati
IperSimply
1,7 Km
Spazio Conad
1,8 Km
Italmark
2,3 Km
Coop
2,5 Km
Negozi Negozi
Upim
1,7 Km
Wheelup
1,7 Km
Franklin & Marshall Store
2,2 Km
Privativa
2,3 Km
Le delizie del fornaio
2,7 Km
Bar Bar
LAS Vegas Games & Foods
1,7 Km
Caffè Marconi
2,4 Km
Bar Viandante
2,5 Km
Bolle di Sapore
2,6 Km
Les Amis
2,7 Km
Ristoranti Ristoranti
Trattoria La Campagnola
950 m
Wok Sushi
1,1 Km
Villa Badia Piccola
1,9 Km
Pizzeria Trattoria da Cinana
1,9 Km
Ristorante Pizzeria Il Gabbiano
2,0 Km
Mostra tutto

Caratteristiche

Rif.:
61159814
Piano:
1 di 2 (ultimo Piano)
Condizionamento:
Autonomo
Ascensore:
No
Riscaldamento:
Autonomo
Libero:
Mostra tutto
Prezzo Prezzo
€ 1.400 / mese
Spese annue Spese annue
€ 0

Altre caratteristiche

Descrizione dei locali
Bagno Con Finestra

Classe Energetica

F
F
F
F
F
F
F
F
F
EP globale non rinnovabile:
280.56 kW h/m² anno
EP globale rinnovabile:
3.23 kW h/m² anno
EP invernale del fabbricato:
EP estiva del fabbricato:
Anno di costruzione:
1980
Riscaldamento:
Autonomo
Tipo impianto:
Ad aria
Tipo alimentazione:
Aria

Ti interessa visionare l'immobile?

Fissa un appuntamento  Fissa un appuntamento

Richiedi informazioni

Clicca su Leggi per aprire l'informativa
* Questi campi sono obbligatori
Affiliato
Industriale Rovato Srl
Via Franciacorta, 74 25038 Rovato (BS)

Il nostro staff


  • Dylan Barzaghi
    Collaboratore

  • Matteo Cottelli
    Collaboratore

  • Michelle Gallo
    Coordinatrice

  • Sofiamaria Poli
    Coordinatrice

  • Simone Tengattini
    Collaboratore

  • Federica Toresini
    Affiliata
Via Franciacorta, 74 25038 Rovato (BS)
Zona: Provincia di Brescia-Hinterland Sud-Ovest
Mostra su mappa
Orari: Lunedì-Venerdì dalle 08.30-12.30 14.30-19.30 Sabato dalle 08.30-12.00
Affiliato
Industriale Rovato Srl
Via Franciacorta, 74 25038 Rovato (BS)

2026 Tecnocasa Franchising S.p.A. - P. IVA 08365160152 - Via Monte Bianco 60/A 20089 Rozzano (MI). Ogni agenzia ha un proprio titolare ed è autonoma. Privacy policy | Policy utilizzo | Cookie policy