Ufficio in vendita

Cazzago San Martino, Via Sandro Pertini
1 locale 1 locale
175 Mq 175 Mq
2 bagni 2 bagni

Ufficio in vendita

Cazzago San Martino, Via Sandro Pertini

Descrizione annuncio

COSA SAPERE DELL'IMMOBILE
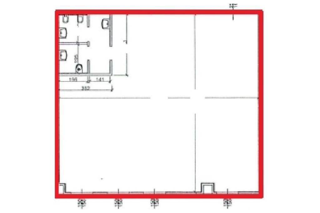
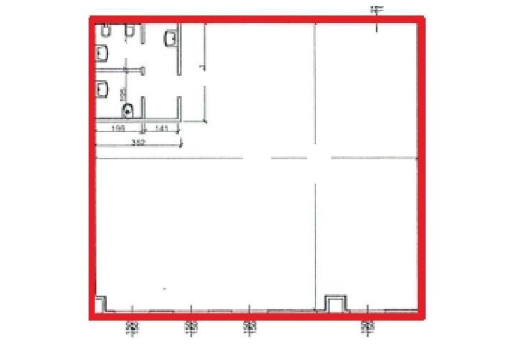
Proponiamo in vendita uno spazio commerciale adibito all'utilizzo direzionale o artigianale che dispone di una superficie di circa 175 metri quadrati. La soluzione è ubicata al primo ed ultimo piano di un complesso commerciale.


DESCRIZIONE E PARTICOLARITA'
La costruzione che ospita l'unità immobiliare è a destinazione commerciale e direzionale, è stata edificata con struttura prefabbricata, con negozi al pianterreno e laboratori ed uffici al primo ed ultimo livello del complesso che presenta un accesso condominiale dove si trovano l'ascensore e l'ampia scala che collegano al livello. Lo spazio proposto in vendita è un grande open space di circa 175 metri quadrati che affaccia sul fronte della strada, attualmente rifinito allo stato rustico con realizzati i vani che ospiteranno i servizi igienici. La soluzione può essere adibita a svariate tipologie di attività professionali ed è facilmente allestibile per attività artigianali, laboratori medici e palestre in genere. Il complesso dispone di innumerevoli posti auto.


UBICAZIONE E CONTESTO
La struttura si trova ubicata in una posizione privilegiata, visibilissima e dominante: affaccia ed è adiacente ad una rotatoria che smista il traffico verso la vicina strada statale II Padana Superiore ed in direzione opposta conduce all'ingresso del casello autostradale di Rovato dell'autostrada A4 Milano - Venezia.

Mostra tutto

Nelle vicinanze

Trasporto pubblico Trasporto pubblico
Cazzago San Martino
Cazzago San Martino
970 m
stazione di Rovato Città
stazione di Rovato Città
1,8 Km
FNMA Bornato Stazione
FNMA Bornato Stazione
2,5 Km
Ricariche auto elettriche Ricariche auto elettriche
A2A Casello di Rovato A4
1,9 Km
Lidl Rovato | EnelX
2,2 Km
A2A Rovato Garibaldi
2,4 Km
A2A Municipio di Rovato
2,6 Km
Scuole Scuole
Scuole
1,5 Km
Scuola primaria
2,6 Km
Farmacia Farmacia
Farmacia Comunale
2,3 Km
Farmacia
2,4 Km
Comunale
3,0 Km
Supermercati Supermercati
Eurospin
1,8 Km
Negozi Negozi
Piazza Italia
1,9 Km
San Giorgio
2,6 Km
Bar Bar
Rock Out
560 m
Antinoo bar gelateria
2,2 Km
Ristoranti Ristoranti
Lupita's
220 m
Pabo's
1,3 Km
Officina del gusto
1,7 Km
Sushiko
1,9 Km
Ristoranti
2,4 Km
Mostra tutto

Caratteristiche

Rif.:
60905024
Piano:
1 di 2 con ascensore (Piano rialzato)
Posti auto:
5
Condizionamento:
Predisposizione impianto
Ascensore:
Riscaldamento:
Assente
Mostra tutto
Prezzo Prezzo
€ 137.500
Rata mutuo Rata mutuo
€ 648 / mese
Spese annue Spese annue
€ 0
Anche in affitto a
Proponi il tuo prezzoProponi il tuo prezzo

Classe Energetica

Questo immobile è esente da classe energetica
Anno di costruzione:
1980
Riscaldamento:
Assente

Ti interessa visionare l'immobile?

Fissa un appuntamento  Fissa un appuntamento

Richiedi informazioni

Clicca su Leggi per aprire l'informativa
* Questi campi sono obbligatori

Calcola il tuo mutuo

Semplice e senza impegno
Anticipo

( % )
Mutuo

( % )

pochi semplici passi

inserisci i tuoi dati
Questionario completato
Grazie per aver richiesto un appuntamento senza impegno con un nostro Consulente del Credito e Assicurativo.

Hai inserito correttamente tutti i dati necessari e a breve riceverai una e-mail con un link da convalidare per inviare i tuoi dati.
Affiliato
Industriale Rovato Srl
Via Franciacorta, 74 25038 Rovato (BS)

Il nostro staff


  • Dylan Barzaghi
    Collaboratore

  • Matteo Cottelli
    Collaboratore

  • Michelle Gallo
    Coordinatrice

  • Sofiamaria Poli
    Coordinatrice

  • Simone Tengattini
    Collaboratore

  • Federica Toresini
    Affiliata
Via Franciacorta, 74 25038 Rovato (BS)
Zona: Provincia di Brescia-Hinterland Sud-Ovest
Mostra su mappa
Orari: Lunedì-Venerdì dalle 08.30-12.30 14.30-19.30 Sabato dalle 08.30-12.00
Affiliato
Industriale Rovato Srl
Via Franciacorta, 74 25038 Rovato (BS)

2026 Tecnocasa Franchising S.p.A. - P. IVA 08365160152 - Via Monte Bianco 60/A 20089 Rozzano (MI). Ogni agenzia ha un proprio titolare ed è autonoma. Privacy policy | Policy utilizzo | Cookie policy